文章信息
- 司政, 程帅, 李守义, 黄灵芝, 杨丹
- SI Zheng, CHENG Shuai, LI Shouyi, HUANG Lingzhi, YANG Dan
- 横缝竖向止水布设对轴流式机组厂房应力的影响
- Influence of vertical water stop layout for transverse joint on stress of axial flow unit hydropower house
- 武汉大学学报(工学版), 2018, 51(8): 695-702
- Engineering Journal of Wuhan University, 2018, 51(8): 695-702
- http://dx.doi.org/10.14188/j.1671-8844.2018-08-005
-
文章历史
- 收稿日期: 2018-04-10
2. 西安热工研究院有限公司,陕西 西安 710054
2. Xi'an Thermal Power Research Institute Co., Ltd., Xi'an 710054, China
轴流式机组厂房内部空腔、孔洞尺寸较大,结构复杂,空间布局繁琐,进水口底板、进水口顶板、蜗壳、尾水管等关键部位在内外水压力不平衡工况下往往处于高应力状态,会引起结构损伤或明显变形,对机组安全稳定运行极其不利[1].
近年来, 对电站厂房的研究主要集中在厂房结构抗震安全以及机组振动对厂房结构的影响[2-5], 而对止水的研究则集中在止水施工工艺、面板坝周边缝止水失效的影响等方面[6-8],止水布置对厂房结构应力的影响研究较少.周炎[9]、黄春基[10]对所调查的27座水电站厂房各类止水设施进行总结分析,针对河床式水电站厂房给出开口式及封闭式的止水设计方案,并提出相关改进意见和止水施工技术要求.周伟[11]对河床式电站厂房3种常见横缝止水布设方案下厂房主要结构的应力分布规律进行研究,提出了满足各种运行工况的最佳横缝止水布设形式.李守义等[12]采用结构力学法研究分析了贯流式电站厂房几种常见横缝止水布置形式下流道结构的内力分布规律和配筋量,提出内力分布相对均匀、钢筋用量小的较优水平止水布置方案.向功兴等[13]研究了不同止水位置下河床式电站混凝土蜗壳结构受力特性及座环径向柔度,结果表明,正常及检修工况下止水布设在蜗壳流道顶板高程以上位置时有利于结构的受力.李守义等[14]研究了河床式水电站厂房3种不同深止水布设形式下厂房主要结构的应力分布,结果表明,上游止水开口布设且水平止水布置在蜗壳顶板中部时可有效减小高水头作用下电站厂房蜗壳内部拉应力,有利于电站厂房的安全.
现有研究成果表明,合理的横缝止水布设可改善厂房部分结构应力.但是这些研究成果仅针对特定的止水布设方案进行分析,未系统研究止水位置对厂房关键部位应力的影响规律.本文结合实际工程,研究轴流式机组厂房横缝上游竖向止水和下游竖向止水在一定范围内变动时,厂房进出水口关键部位的应力变化规律,提出对类似工程具有通用指导意义的横缝竖向止水布设方案,为轴流式机组厂房横缝止水设计提供参考.
1 工程概况 1.1 基本资料水电站厂房共设3台轴流式机组,厂房包括进水口、隔墙与胸墙、下游挡水墙、门槽、流道、蜗壳、尾水管及尾水闸墩等结构.
1.2 计算工况与荷载组合根据规范[15, 16],对于河床轴流式机组厂房,基本组合中选取正常运行情况,上游水位为正常蓄水位65.50 m,相应下游水位为28.50 m;偶然组合中选取机组检修情况,上游为正常蓄水位65.50 m,下游检修水位采用2台机运行尾水位25.50 m.本文以上述正常运行和机组检修2种工况作为典型情况分析各止水布设方案对厂房结构进出水口应力的影响.各运行情况所考虑的荷载见表 1.
| 荷载组合 | 计算工况 | 荷载 | 充水情况 | |||||||||
| 结构自重 | 永久设备重 | 水重 | 静水压力 | 扬压力 | 浪压力 | 泥沙压力 | 检修门推力 | 流道 | 排沙孔 | |||
| 基本组合 | 正常运行 | √ | √ | √ | √ | √ | √ | √ | √ | √ | ||
| 偶然组合 | 机组检修 | √ | √ | √ | √ | √ | √ | √ | √ | √ | ||
| 注:√表示考虑该项荷载. | ||||||||||||
根据水电站厂房结构特点及其相关研究成果[17, 18],本文在三维有限元计算分析中,作以下假定:
1) 机组坝段之间设有永久横缝,各坝段独立承受荷载,坝段间无相互作用,可独立选择中间机组坝段开展相关研究.
2) 计算中假定混凝土与基岩材料为均质、弹性、各向同性的连续体,不考虑钢筋的作用;厂房与地基连接可靠,不存在相互脱离的情形,满足连续性条件,不考虑非线性接触.
3) 机组厂房横缝处止水埋设牢固可靠,不存在失效破坏、漏水渗水等情况.
2.2 计算模型及材料参数本文采用ANSYS大型有限元软件,选取中间机组坝段建立水电站厂房三维有限元计算模型.基岩的模拟范围为:由厂房上下游边界分别向上下游延伸80.0 m,基岩深度方向由厂房底部最低点向下延伸100.0 m.基岩底部施加3向约束,基岩左右侧面及上下游面施加法向约束,厂房左右横缝面及上下游面均为自由面.整体计算模型单元剖分基本采用8结点6面体Solid45单元,蜗壳及尾水管内敷钢衬采用Shell181壳单元模拟.整体厂房结构网格尺寸不大于1.0 m,地基网格尺寸不大于5.0 m,厂房及地基有限元模型单元总数为195 685个,节点总数为136 281个.
计算分析中整体坐标系原点设在厂房坝段上游底部最右侧与地基相交处,其计算坐标系为:沿水流方向指向下游为X轴正方向,沿高度方向铅直向上为Y轴正方向,垂直水流方向指向右岸为Z轴正方向.厂房有限元计算模型见图 1.
|
| 图 1 厂房有限元计算模型 Fig. 1 Finite element model of hydropower house |
厂房结构采用的混凝土主要为C25,弹模为28.0 GPa,泊松比为0.167;钢衬弹模为210.0 GPa,泊松比为0.3;基岩弹模为8.0 GPa,泊松比为0.28.
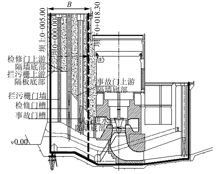
3 上游竖向止水布设对进水口应力影响 3.1 上游竖向止水布设方案横缝上游竖向止水位置由上游逐渐变化至下游,分别设置在距离厂房上游面0.1B、0.3B、0.5B、0.7B及0.9B处(B为厂房坝段上游面至胸墙下游面最小距离,即坝上0-005.00 m至坝下0+018.30 m).横缝下游竖向止水及水平止水位置不变,下游竖向止水布设在靠近下游面,水平止水布设在靠近建基面.厂房横缝上游竖向止水布设位置变化、下游竖向止水以及水平止水布设见图 2.
|
| 图 2 厂房横缝上游竖向止水布设位置变化示意图 Fig. 2 Vertical water stop for transverse joint upstream of hydropower house |
进水口底板的主要高应力区在其表面处,即与水流直接接触的部位,通常其横河向(Z向)及顺河向(X向)应力较大.由于各方案进水口底板表面处X向应力普遍比Z向应力小,故本文只分析进水口底板表面的Z向应力变化规律.由计算结果可知,各上游竖向止水方案进水口底板顶面关键部位Z向应力值的变化趋势如图 3所示(横坐标为上游竖向止水距上游面距离,纵坐标为关键部位Z向应力最大值).
|
| 图 3 各上游竖向止水方案进水口底板顶面关键部位Z向应力 Fig. 3 Stresses of key position of top surface of intake floor in different vertical water stops |
由图 3可以看出,2种控制工况下,进水口底板表面靠近左、右边墩部位的应力水平较高,且底板顶面左侧应力值都略大于右侧,随着上游竖向止水的下移,二者Z向应力值都会逐渐减小.当止水由距上游面0.1B下移至0.9B时,正常运行情况下进水口底板顶面左侧应力由5.62 MPa减小至2.07 MPa,检修工况下左侧的应力水平减小效果更为明显,Z向拉应力由5.13 MPa减小至压应力0.22 MPa,可见上游竖向止水的下移,可有效缓解进水口底板顶面两侧靠近边墩处的拉应力.进水口底板顶面中部应力水平相对较低,基本处于0~1.0 MPa区间内,上游竖向止水的布设位置对其影响甚微,无明显规律可循.所不同的是,在正常运行工况下,止水由距上游面0.1B下移至0.9B时,进水口底板顶面两侧的应力值始终比中部大,而在机组检修工况时,当止水下移至0.5B之后时,进水口底板顶面两侧的应力值下降至小于底板顶面中部应力,3个部位的应力都维持在较低的水平上.
各方案进水口底板顶面Z向应力最大值出现位置如表 2所示,2种运行工况下,最大应力值出现位置都随上游竖向止水的下移而下移.
| 上游竖向止水布设方案 | 最大应力值位置/m | |
| 正常运行工况 | 机组检修工况 | |
| 0.1B | 坝下0+001.500 | 坝下0+001.500 |
| 0.3B | 坝下0+005.267 | 坝下0+001.500 |
| 0.5B | 坝下0+009.667 | 坝下0+017.387 |
| 0.7B | 坝下0+017.387 | 坝下0+019.390 |
| 0.9B | 坝下0+019.390 | 坝下0+019.390 |
进水口顶部位于整个上游隔墙及胸墙的底部,在水电站运行过程中会承受很大的水压力.正常运行和机组检修工况下,将拦污栅上游隔板底部、检修门上游隔墙底部、事故门上游隔墙底部及蜗壳进水口胸墙底部4个关键部位(图 2)的Z向应力沿左右岸方向的分布规律绘制成曲线图,如图 4、5所示(横坐标为从左岸到右岸的距离,纵坐标为Z向应力值).
|
| 图 4 正常运行时进水口顶部各处Z向应力沿左右岸方向分布图 Fig. 4 Z-stress distributions of intake top along direction of dam axis under normal operation condition |
|
| 图 5 机组检修时流道顶部各处Z向应力沿左右岸方向分布图 Fig. 5 Z-stress of the channel roof along direction of dam axis under maintenance condition |
由进水口顶部各处Z向应力分布图可知,各止水布设方案进水口顶部的Z向应力值从左岸到右岸总体呈先增大后减小、再增大再减小的趋势,中间会出现3个峰值,峰值位置大多出现在靠近左边墩内侧部位、进水口顶板中部及靠近右边墩内侧部位.正常运行时,随着止水的下移,进水口顶部应力趋于均匀一致,机组检修时,止水下移至0.7B之后,进水口顶部靠近左右边墩内侧部位由高拉应力转为压应力.2种运行工况下,当上游竖向止水由距上游面0.1B下移至0.9B处,进水口顶部各处Z向拉应力都会逐渐减小.对于拦污栅上游隔板底部和检修门上游隔墙底部,当止水由0.1B下移至0.5B时,其应力已经由4.3~6.6 MPa的较高应力水平减小至0.5 MPa以下,当止水由0.5B下移至0.9B时,其应力变化幅度较小.事故门上游隔墙底部及蜗壳进水口顶部的Z向拉应力随着止水下移一直在减小,部分区域由较高拉应力转变为受压状态,且压应力在2.0 MPa以内.总体上,0.9B方案下进水口顶部大部分区域Z向应力相比0.1B方案时减小幅度高达90%以上,减小效果极为明显.
3.2.3 进水口边墩应力在两侧水荷载压差作用下,水电站厂房的进水口边墩往往处于高应力状态,在实际工程施工中也需要在此处配置大量的顺河向(X向)和铅直向(Y向)钢筋,以承担这2个方向的拉应力.由于厂房坝段左右横缝止水布设方案一致,且在进水口部位闸墩内部结构对称布置,故在相同荷载作用下,左右边墩的应力分布相同,本文以右边墩为例分析进水口边墩在不同止水方案下X向及Y向应力变化规律.对于正常运行和机组检修工况,各上游止水布设方案下进水口边墩X向和Y向拉应力最大值及其出现位置见表 3.
| 计算工况 | 止水布设方案 | X向最大拉应力及位置 | Y向最大拉应力及位置 | |||||
| 桩号/m | 高程/m | 应力值/MPa | 桩号/m | 高程/m | 应力值/MPa | |||
| 正常运行 | 0.1B | 坝下0+000.35 | 24.568 | 2.000 | 坝上0-005.00 | 22.321 | 4.600 | |
| 0.3B | 坝下0+005.20 | 19.307 | 1.600 | 坝下0+002.36 | 18.675 | 2.100 | ||
| 0.5B | 坝下0+010.80 | 14.456 | 1.200 | 坝下0+008.40 | 13.786 | 1.000 | ||
| 0.7B | 坝下0+015.14 | 11.255 | 1.100 | 坝下0+016.02 | 9.653 | 0.900 | ||
| 0.9B | 坝下0+020.40 | 6.987 | 1.300 | 坝下0+020.40 | 6.987 | 0.700 | ||
| 机组检修 | 0.1B | 坝下0+001.37 | 25.568 | 1.600 | 坝上0-005.00 | 22.321 | 4.400 | |
| 0.3B | 坝下0+003.24 | 26.650 | 1.200 | 坝上0-005.00 | 22.321 | 2.000 | ||
| 0.5B | 坝下0+010.80 | 43.545 | 0.500 | 坝上0-005.00 | 11.500 | 1.100 | ||
| 0.7B | 坝下0+012.20 | 37.909 | 0.500 | 坝上0-005.00 | 11.500 | 1.100 | ||
| 0.9B | 坝下0+019.24 | 8.4407 | 0.400 | 坝上0-005.00 | 11.500 | 1.100 | ||
由表 3可知,正常运行时,X向拉应力最大值随着止水位置的下移而由2.0 MPa逐渐减小,当止水位置下移至距上游面0.7B以下时,拉应力最大值为1.1 MPa左右,且变化幅度较小,维持在一个相对稳定的水平.Y向拉应力最大值随着止水位置的下移而由4.6 MPa逐渐减小至0.7 MPa左右.机组检修工况下,边墩X向拉应力较小,且出现位置都相对固定,无明显变化规律.当上游竖向止水距上游面0.3B之前,X向拉应力最大值为1.2~1.6 MPa,当止水位置下移至距上游面0.5B之后时,由于止水位置在检修门下游位置,横缝处水压力将检修门前的内水压力完全抵消,故X向拉应力都很小,最大值约为0.5 MPa.边墩Y向拉应力最大值位置也相对固定,但应力值随止水的下移逐渐减小,在0.1B方案下边墩Y向应力最大值为4.4 MPa左右,当止水下移至距上游面0.5B之后时,最大值维持在1.1 MPa左右不变.
4 下游竖向止水布设对尾水管出口应力的影响 4.1 下游竖向止水布设方案横缝下游竖向止水由下游逐渐移至上游,分别设置在距厂房坝段下游面0.1D、0.3D、0.5D、0.7D及0.9D处(D为厂房坝段下游面至下游挡墙上游面最小距离,即坝下0+058.90 m至坝下0+068.90 m;下游竖向止水继续上移可能导致厂房操作间潮湿,对控制设备和操作人员均不利),横缝上游竖向止水布设在距离上游面0.7B处保持不变,横缝水平止水布设在靠近建基面保持不变.厂房横缝下游竖向止水布设位置变化见图 6.
|
| 图 6 厂房横缝下游竖向止水布设位置变化示意图 Fig. 6 Locations of vertical water stop for transverse joint downstream of hydropower house |
尾水管部位混凝土体型复杂,受力方向各不相同,且混凝土为脆性材料,通常以断裂的形式失效,适用于第一强度理论,即认为最大拉应力是引起断裂的主要因素[19-21],主要分析其最大主应力σ1和最小主应力σ3.由于下游竖向止水的变化范围基本位于尾水管出口段附近,故选取坝下0+064.20 m断面(尾水闸门上游断面)作为典型剖面分析不同下游竖向止水布设方案下的结构主应力的变化规律.2种控制工况下,各方案尾水管出口段各部位最大主应力值如表 4所示.
| MPa | ||||||
| 计算工况 | 止水布设方案 | 出口顶板 | 下部底板 | 左侧边墙 | 中间隔墙 | 右侧边墙 |
| 正常运行 | 0.1D | 3.4 | 1.2 | 0.8 | -0.1 | 0.8 |
| 0.3D | 2.2 | 1.0 | 0.6 | 0 | 0.6 | |
| 0.5D | 1.1 | 0.9 | 0.5 | -0.2 | 0.5 | |
| 0.7D | 0.9 | 0.6 | 0.3 | -0.1 | 0.3 | |
| 0.9D | 0.5 | 0.5 | 0.1 | -0.2 | 0.1 | |
| 机组检修 | 0.1D | 2.7 | 1.3 | 0.9 | 0.2 | 0.9 |
| 0.3D | 1.6 | 1.1 | 0.7 | 0.2 | 0.7 | |
| 0.5D | 0.8 | 0.8 | 0.5 | 0.1 | 0.5 | |
| 0.7D | 0.6 | 0.6 | 0.8 | 0.1 | 0.2 | |
| 0.9D | 0.5 | 0.5 | 0.1 | -0.1 | 0.1 | |
由表 4可知,主拉应力最大值都出现在尾水管出口段的顶板,且随着下游竖向止水的上移,最大值逐渐减小.其中,正常运行工况时,主拉应力由0.1D方案下的3.4 MPa逐渐减小至0.9D方案下的0.5 MPa;机组检修工况时,由0.1D方案下的2.7 MPa逐渐减小至0.9D方案下的0.5 MPa,拉应力减小效果明显,最大主拉应力值减小都达到80%以上,说明合理的下游竖向止水布设方案可以缓解尾水出口段的主拉应力.下部底板的最大主拉应力随着下游竖向止水的上移也在逐渐减小,减小效果略次于出口段顶板,减小量为60%左右;下游竖向止水布设对右侧边墙及中间隔墙的主拉应力影响较弱.
不同下游竖向止水布设方案下,尾水管扩散段出口处的上部横梁和下部底板的主压应力几乎不变,右侧边墙和中间隔墙会有微弱的变化,随着下游竖向止水的上移,主压应力也在逐渐减小,减小量为20%左右,限于篇幅,不再另附图表.
5 结语本文以中间机组厂房坝段为研究载体,对轴流式机组厂房横缝上、下游竖向止水布设方案进行系统化研究,主要研究结论如下:
1) 横缝上游竖向止水设置在厂房上游挡水墙偏下游侧,可充分缓解进水口底板、进水口顶部、进水口边墩部位应力.随着止水的下移,各部位应力逐渐减小,当止水由距上游面0.1B下移至0.7B处,部分结构拉应力减小幅度高达90%以上,下移至0.7B之后,各部位应力基本处于稳定状态.综合考虑各因素,建议将上游竖向止水布置在距离上游面(0.7~0.9)B处,以最大程度降低结构的应力.
2) 横缝下游竖向止水主要对尾水管出口段结构应力有所影响.随着下游竖向止水由距下游面0.1D上移至0.9D处,尾水管出口段结构主应力皆呈减小趋势,扩散管出口顶梁部位主拉应力减小幅度达80%以上.工程设计中,可将下游竖向止水设置在距离下游面0.9D处,即布置在靠近下游挡墙的上游面处.
| [1] |
陈本龙, 慕洪友, 湛正刚. 高尾水作用下厂房混凝土结构的防裂抗渗研究[J]. 红水河, 2016, 35(4): 28-31. Chen Benlong, Mu Hongyou, Zhan Zhenggang. Study on crack and leakage prevention for powerhouse concrete structure under high tail-water level effect[J]. Hongshui River, 2016, 35(4): 28-31. DOI:10.3969/j.issn.1001-408X.2016.04.006 |
| [2] |
张存慧, 马震岳, 张运良. 三峡右岸电站主厂房结构的振动应力分析[J]. 水力发电学报, 2010, 29(6): 144-148. Zhang Cunhui, Ma Zhenyue, Zhang Yunliang. Dynamic stress analysis of Three Gorges right bank powerhouse[J]. Journal of Hydroelectric Engineering, 2010, 29(6): 144-148. |
| [3] |
张启灵, 伍鹤皋, 李端有. 水电站地面厂房抗震措施研究[J]. 水力发电学报, 2012, 31(5): 184-190. Zhang Qiling, Wu Hegao, Li Duanyou. Aseismic measure of surface hydropower house[J]. Journal of Hydroelectric Engineering, 2012, 31(5): 184-190. |
| [4] |
薛晶晶, 张振华, 陈帅. 某电站厂房楼板裂缝成因三维有限元静力分析[J]. 水电能源科学, 2011, 29(2): 72-75. Xue Jingjing, Zhang Zhenhua, Chen Shuai. Static cause analysis of floor cracks for powerhouse of hydropower station with 3D finite element method[J]. Water Resources and Power, 2011, 29(2): 72-75. DOI:10.3969/j.issn.1000-7709.2011.02.023 |
| [5] |
张辉东, 王日宣, 王元丰. 大型水电站厂房结构地震时程响应非线性数值模拟[J]. 水力发电学报, 2007, 26(4): 96-102. Zhang Huidong, Wang Rixuan, Wang Yuanfeng. Seismic time history and non-linear numerical simulation of large-scale powerhouse structure[J]. Journal of Hydroelectric Engineering, 2007, 26(4): 96-102. DOI:10.3969/j.issn.1003-1243.2007.04.019 |
| [6] |
邹金波. 大坝横缝止排水系统施工工艺改进的探讨[J]. 水力发电, 2014, 40(9): 20-21. Zou Jinbo. Construction technology improvements on water sealing and drainage system of dam transverse joints[J]. Water Power, 2014, 40(9): 20-21. DOI:10.3969/j.issn.0559-9342.2014.09.007 |
| [7] |
Jia Jinsheng, Zheng Cuiying, Hao Jutao, et al. Studies for the transverse joint waterstops at Xiaowan dam[J]. International Journal on Hydropower and Dams, 2006, 13(1): 50-58. |
| [8] |
Hao Jutao. Adaptability of slab joint waterstops to very high CFRDs[J]. International Journal on Hydropower and Dams, 2010, 17(1): 78-83. |
| [9] |
周炎. 水电站厂房止水设施效果调查分析[J]. 华东水电技术, 1990, 12(1): 14-20. Zhou Yan. Investigation and analysis of the effect of the sealing facilities in hydropower station powerhouse[J]. East China Hydropower Technology, 1990, 12(1): 14-20. |
| [10] |
黄春基. 水电站厂房止水设施效果调查分析[J]. 华东水电技术, 1990, 12(4): 53-60. Huang Chunji. Investigation and analysis of the effect of the sealing facilities in hydropower station powerhouse[J]. East China Hydropower Technology, 1990, 12(4): 53-60. |
| [11] |
周伟. 河床式水电站厂房坝段横缝止水布置形式研究[D]. 西安: 西安理工大学, 2008. Zhou Wei. Study on the transverse joint sealing arrangement form in the riverbed-hydropower station powerhouse[D]. Xi'an: Xi'an University of Technology, 2008. http://cdmd.cnki.com.cn/Article/CDMD-10700-2008160385.htm |
| [12] |
李守义, 安学民, 杨胜, 等. 灯泡贯流式水电站厂房水平止水布置研究[J]. 水资源与水工程学报, 2009, 20(1): 68-71. Li Shouyi, An Xuemin, Yang Sheng, et al. Study on the water seal layout at the bulb tubular powe station[J]. Journal of Water Resources & Water Engineering, 2009, 20(1): 68-71. |
| [13] |
向功兴, 杨亚军, 伍鹤皋, 等. 河床式厂房止水布置和混凝土蜗壳座环柔度[J]. 武汉大学学报(工学版), 2010, 43(1): 46-50. Xiang Gongxing, Yang Yajun, Wu Hegao, et al. Study of layout of water seals for powerhouse in river channel and flexibility of stay rings for concrete spiral case[J]. Engineering Journal of Wuhan University, 2010, 43(1): 46-50. |
| [14] |
李守义, 肖静. 河床式水电站厂房横缝止水布置形式研究[J]. 水力发电学报, 2014, 33(5): 165-168. Li Shouyi, Xiao Jing. Study on waterstop arrangements of transverse joints of hydropower house in river channel[J]. Journal of Hydroelectric Engineering, 2014, 33(5): 165-168. |
| [15] |
水电勘测设计标准化技术委员会. NB/T 35011-2013水电站厂房设计规范[S]. 北京: 中国电力出版社, 2013. Hydropower Survey and Design Standardization Technical Committee. NB/T 35011-2013 Design Specification for Powerhouses of Hydropower Stations[S]. Beijing: China Electric Power Press, 2013. |
| [16] |
中华人民共和国水利部. SL 744-2016水工建筑物荷载设计规范[S]. 北京: 中国水利水电出版社, 2016. Ministry of Water Resources of People's Republic of China. SL 744-2016 Specification for Load Design of Hydraulic Structures[S]. Beijing: China Water Conservancy and Hydropower Press, 2016. |
| [17] |
张玲丽, 谭振江, 韩前龙, 等. 银盘水电站预应力蜗壳结构设计[J]. 水电能源科学, 2016, 34(6): 131-134. Zhang Lingli, Tan Zhenjiang, Han Qianlong, et al. Structure design of pre-stressed spiral case of Yinpan Hydropower Station[J]. Water Resources and Power, 2016, 34(6): 131-134. |
| [18] |
程帅, 李守义, 司政, 等. 水电站厂房自振频率与影响因素的关联度分析[J]. 南水北调与水利科技, 2017, 15(3): 190-196. Cheng Shuai, Li Shouyi, Si Zheng, et al. Relational grade analysis for influencing factors and the natural vibration frequency of hydropower house[J]. South-to-North Water Transfers and Water Science & Technology, 2017, 15(3): 190-196. |
| [19] |
徐芝纶. 弹性力学简明教程[M]. 第四版. 北京: 高等教育出版社, 2013. Xu Zhilun. Elastic Mechanics Concise Tutorial[M]. 4th Edition. Beijing: Higher Education Press, 2013. |
| [20] |
邹建奇, 崔健. 材料力学[M]. 北京: 清华大学出版社, 2015. Zou Jianqi, Cui Jian. Material Mechanics[M]. Beijing: Tsinghua University Press, 2015. |
| [21] |
龚曙光, 边炳传. 有限元基本理论及应用[M]. 武汉: 华中科技大学出版社, 2013. Gong Shuguang, Bian Bingchuan. Basic Theory and Application of Finite Element[M]. Wuhan: Huazhong University of Science and Technology Press, 2013. |
2018, Vol. 51


